Mieszkanie Częstochówka-Parkitka, ul. Łódzka 166
Łódzka 166, Częstochówka-Parkitka, Częstochowa, śląskie
- 485 721 zł
- 55,83 m²
- 8 700 zł/m²
Biuro sprzedaży
Skontaktuj się
Mieszkanie Częstochówka-Parkitka, ul. Łódzka 166
Łódzka 166, Częstochówka-Parkitka, Częstochowa, śląskie
zaktualizowane:
30 kwietnia 2026
Mieszkanie Częstochówka-Parkitka, ul. Łódzka 166
Inwestycja: Nextdom Łódzka 166
Zaktualizowane: 30 kwietnia 2026
485 721 zł 55,83 m² 8 700 zł/m²
grudzień 2027
parter/3
3
garaż
deweloperski
Zobacz na mapie
Termin realizacji:
grudzień 2027Piętro:
parter/3Liczba pokoi:
3Miejsce postojowe:
garażStan mieszkania:
deweloperskiSzczegóły ogłoszenia
- Typ oferty: mieszkanie na sprzedaż
- Cena: 485 721 zł (8 700 zł/m²)
- Termin realizacji: grudzień 2027
- Status oferty: dostępne
- Rynek: pierwotny (oferta dewelopera)
- Charakterystyka mieszkania: 55,83 m², 3 pokoje, 1 łazienka; stan: deweloperski
- Budynek: blok mieszkalny
- winda
- Rozkład mieszkania: piętro 0/3, jednopoziomowe
- Powierzchnia dodatkowa: ogródek (23,8 m²)
- Kuchnia: aneks kuchenny
- Miejsce/a postojowe: w garażu wielostanowiskowym (26 miejsc); garaż w bryle budynku
- Źródło: oferta dewelopera: Nextdom, zaktualizowane: 30.04.2026
- sygnatura ogłoszenia: 4
Lokalizacja
- Inwestycja: Nextdom Łódzka 166
- Adres: Łódzka 166, Częstochówka-Parkitka, Częstochowa, śląskie
- Na terenie inwestycji: plac zabaw
- W pobliżu przedszkole, szkoła podstawowa, restauracja, kawiarnia, apteka, przystanek autobusowy, centrum handlowe, sklepy, las
Opis nieruchomości
3-pokojowe mieszkanie 55,83 m² – parter
Przestronne i jasne mieszkanie o powierzchni 55,83 m², położone na parterze nowoczesnego budynku. (...)
| Mieszkanie24 | 55,83 m² | 8 700 zł/m² | 3/3 | 3 | 485 721 zł |
| Mieszkanie | ||||
|
||||
| 24 |
| Mieszkanie23 | 37,93 m² | 8 900 zł/m² | 3/3 | 2 | 337 577 zł |
| Mieszkanie | ||||
|
||||
| 23 |
| Mieszkanie17 | 55,83 m² | 8 700 zł/m² | 2/3 | 3 | 485 721 zł |
| Mieszkanie | ||||
|
||||
| 17 |
| Mieszkanie16 | 37,93 m² | 8 900 zł/m² | 2/3 | 2 | 337 577 zł |
| Mieszkanie | ||||
|
||||
| 16 |
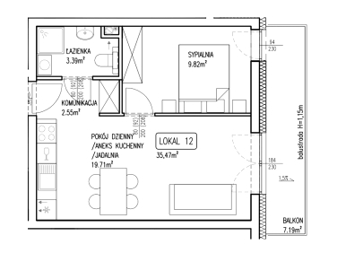
| Mieszkanie12 | 35,47 m² | 8 900 zł/m² | 1/3 | 2 | 315 683 zł |
| Mieszkanie | ||||
|
||||
| 12 |
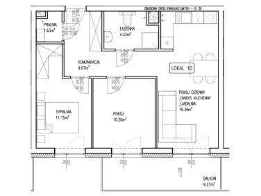
| Mieszkanie10 | 55,83 m² | 8 700 zł/m² | 1/3 | 3 | 485 721 zł |
| Mieszkanie | ||||
|
||||
| 10 |
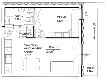
| Mieszkanie6 | 35,47 m² | 8 900 zł/m² | parter/3 | 2 | 315 683 zł |
| Mieszkanie | ||||
|
||||
| 6 |
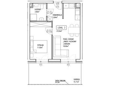
| Mieszkanie3 | 37,93 m² | 8 900 zł/m² | parter/3 | 2 | 337 577 zł |
| Mieszkanie | ||||
|
||||
| 3 |
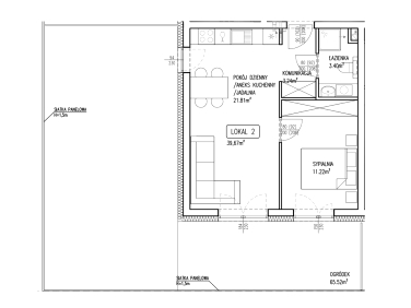
| Mieszkanie2 | 39,67 m² | 8 900 zł/m² | parter/3 | 2 | 353 063 zł |
| Mieszkanie | ||||
|
||||
| 2 |
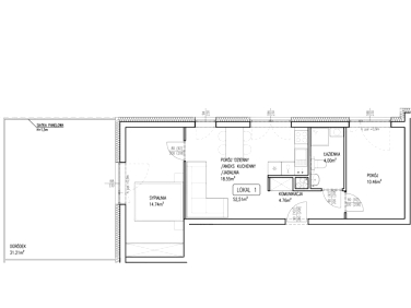
| Mieszkanie1 | 52,40 m² | 8 700 zł/m² | parter/3 | 3 | 455 880 zł |
| Mieszkanie | ||||
|
||||
| 1 |
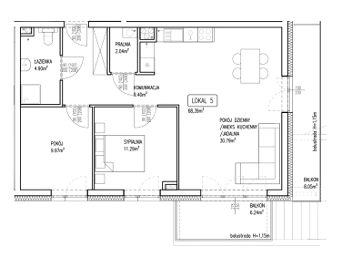
| Mieszkanie5 | 68,39 m² | 8 700 zł/m² | parter/3 | 3 | 594 993 zł |
| Mieszkanie | ||||
|
||||
| 5 |
| Mieszkanie7 | 52,43 m² | 8 700 zł/m² | 1/3 | 3 | 456 141 zł |
| Mieszkanie | ||||
|
||||
| 7 |
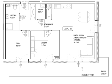
| Mieszkanie11 | 68,39 m² | 8 700 zł/m² | 1/3 | 3 | 594 993 zł |
| Mieszkanie | ||||
|
||||
| 11 |
| Mieszkanie15 | 39,67 m² | 8 900 zł/m² | 2/3 | 2 | 353 063 zł |
| Mieszkanie | ||||
|
||||
| 15 |
| Mieszkanie18 | 68,39 m² | 8 700 zł/m² | 2/3 | 3 | 594 993 zł |
| Mieszkanie | ||||
|
||||
| 18 |
| Mieszkanie22 | 39,67 m² | 8 900 zł/m² | 3/3 | 2 | 353 063 zł |
| Mieszkanie | ||||
|
||||
| 22 |
| Mieszkanie26 | 52,31 m² | 8 700 zł/m² | 3/3 | 3 | 455 097 zł |
| Mieszkanie | ||||
|
||||
| 26 |
Biuro sprzedaży
571 503...
571 503 708


















